Versatile Freestanding Building Opposite Parkland

209, Cecil Street, SOUTH MELBOURNE, VIC, 3205

Overview

Gray Johnson is pleased to offer for immediate sale by EOI this 2-level 1970s era brick building offered in Neo Industrial studio shell styling, presents an exciting value adding opportunity in this gilt-edged location for either commercial or residential uses^.

The opportunity:
> 243 m²* Commercial 1 site with 12 m* frontage and no current Design and Development Overlay (DDO)
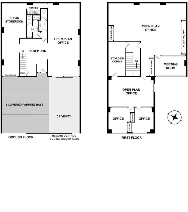
> 335 m²* building area with current permit to extend for dental use
> 3 secure on-site undercover car parks
> Offered vacant possession

The location:
Within 5 minutes* walk to either MSAC, Clarendon Street shopping, Albert Park Village or South Melbourne Market.

Trams virtually at your door.

A host of outdoor options also within walking distance.

Ready access to Metropolitan road networks via Kingsway or Montague Street.

Arrange your today inspection by calling.

*approx.
^STPA

Key Details

Status
For Sale
Type
Development Site

Contact

Agency, Valuations & Advisory (melbourne)
0412 059 900

Leave a Reply

Your email address will not be published.